Sozial gefördertes Quartier Dammstraße

Kategorie: Wohnen
Bauweise: Massivbauweise
Jahr: 2016
Ort: Lörrach
AG: Wohnbau Lörrach
Preise: Auszeichnung beispielhaftes Bauen 2019,
Nominierung Staatspreis Baukultur Baden-Württemberg 2016
Fotos: Dirk Altenkirch

Link: Wettbewerb 2011, 1. Preis
  • 01_MG_0244.jpg
  • 04a_MG_0024--0034--0044.jpg
  • 11_MG_0370.jpg
  • 14b_MG_0177--0208.jpg
  • 22a_MG_1063--1072.jpg
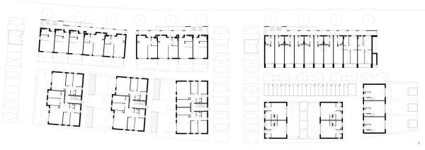
  • Lageplan
    Lageplan
  • Grundriss Erdgeschoss
    Grundriss Erdgeschoss


Erläuterungen:

In der Dammstraße in Lörrach entsteht ein sozial integratives Wohnquartier zur Wiedereingliederung sozial benachteiligter Menschen.
Die neue Bebauung ist klar strukturiert und zurückhaltend gestaltet, um Stigmatisierung zu vermeiden. Sie strebt eine Schichtung an, die Konflikte zwischen verschiedenen Haushalten minimiert. Die Gebäude fügen sich harmonisch in den vorhandenen städtebaulichen Bestand ein und öffnen sich zum Bahndamm hin. Eine kammartige Anordnung dient der Abschirmung des Verkehrslärms an der Dammstraße. Die angrenzende Häuserzeile im Osten wird entsprechend ergänzt.
Die Wohnungen für besondere Bedarfsgruppen werden im östlichen Bereich platziert, um den sukzessiven Umzug der Bewohner*innen zu ermöglichen. Die Wohn- und Aufenthaltsräume sind zu eigenen, nicht einsehbaren Außenbereichen orientiert, um Nutzungskonflikte zu vermeiden. Die Gebäude sind aus wirtschaftlichen Gründen und zur Vermeidung sozial schwieriger Räume nicht unterkellert.
Ein Riegel ist entlang der Dammstraße angeordnet und zur Minimierung der Lärmbelastung für die betroffenen Wohnungen mit einer offenen Laubengangerschließung versehen.
Eine kleinere Zäsur in Form einer baumbestandenen Parkierungsfläche trennt das Baufeld für die sozial stabilen Haushalten von der südlich anschließenden bestehenden Bebauung.
Um die Wirtschaftlichkeit zu steigern, wird eine klare und durchgängige Baustruktur mit kostengünstigen Spannweiten und wiederkehrenden Designelementen vorgeschlagen. Eine einfache Bauweise wird angestrebt, um die Zusammenarbeit mit der Beschäftigungsinitiative "Bauhütte" zu erleichtern. Eine identische Gestaltung der Nasszellen ermöglicht eine Serienfertigung. Angesichts des potenziellen Vandalismus werden einschalige Außenwände aus Leichtmauerziegeln wie z.B. Poroton mit einem außenliegenden Dämmputz geplant. Sowohl die Ausrichtung der Gebäude als auch die kompakte Bauform tragen positiv zur Energieeffizienz bei.