Wohnbebauung K2/N2/R2

Kategorie: Wohnen
Bauweise: Massivbauweise
Jahr: 2015
Ort: Karlsruhe-Knielingen
AG: KGK- Konversionsgesellschaft Karlsruhe mbH
Veröffentlichungen: Karlsruhe neue Architektur (2018)
Fotos: Stephan Baumann

  • k2n2r2_10-bearbeitet.jpg
  • k2n2r2_09-bearbeitet.jpg
  • k2n2r2_11.jpg
  • k2n2r2_12.jpg
  • Titelseite Architekturfuehrer 2019 sw.jpg
  • Lageplan
    Lageplan
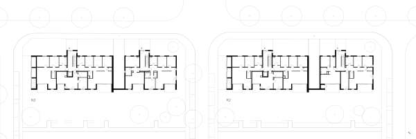
  • Grundriss Erdgeschoss K2, N2
    Grundriss Erdgeschoss K2, N2
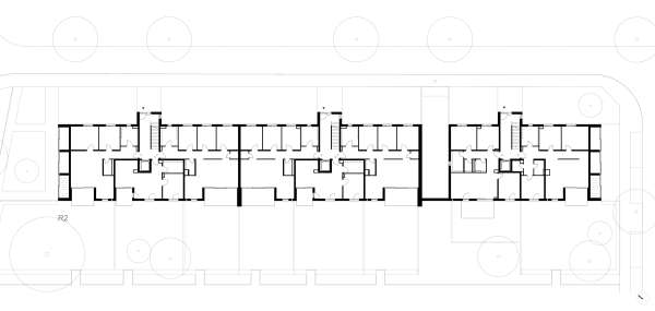
  • Grundriss Erdgeschoss R2
    Grundriss Erdgeschoss R2


Erläuterungen:

Die markante, in der Höhe gestaffelte Wohnbebauung bildet entlang der Egon-Eiermann-Allee eine einheitlich gestaltete, räumlich und schallschutztechnisch wirksame harte Kante.
Durch die vorgegebene, großzügig bemessene Vorgartenzone kann auf eine Distanz schaffende Sockelausbildung verzichtet werden.
Entlang der Straße werden die drei Gebäude durch charakteristische Vorbauten (Hauseingänge) gegliedert.
Jeder der 49 praktisch zugeschnittenen Wohnungen ist ein großzügig dimensionierter, nicht einsehbarer Freibereich zugeordnet: Im EG in Form eines Gartens mit wetter-geschützter Terrasse, im 1. OG in Form einer Kombination aus Loggia und Balkon und im DG in Form eines privaten Dachgartens.
Die Wohn- und Essbereiche der allseitig mit großen Fensterelementen versehenen und entsprechend lichtdurchfluteten Wohnungen orientieren sich vorwiegend zur Gartenseite hin nach Südwesten.