Pavillon an der Radfahrerkirche

Kategorie: Gastronomie, Gemeinde
Bauweise: Holzbauweise
Jahr: 2021
Ort: Gaggenau-Hörden
AG: Evangelische Kirchengemeinde Gaggenau
Fotos: Stephan Baumann

  • rfkgg_05.jpg
  • rfkgg_07.jpg
  • rfkgg_08.jpg
  • rfkgg_09.jpg
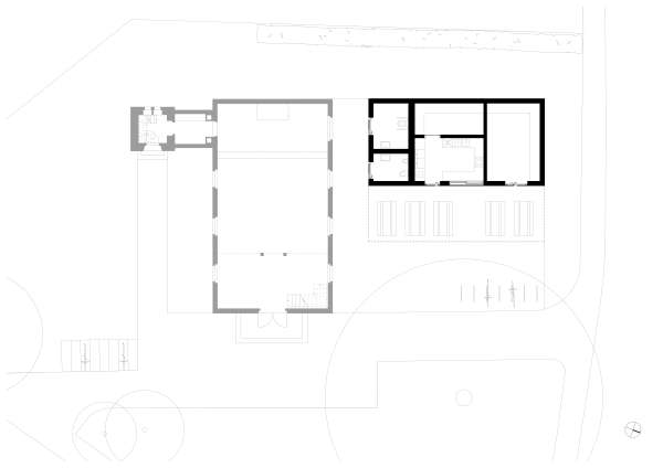
  • Grundriss
    Grundriss


Erläuterungen:

Der Pavillon an der Radfahrerkirche in Gaggenau-Hörden stellt ergänzende Nutzungsmöglichkeiten im Zusammenhang mit den bereits vorhandenen Veranstaltungen der Kirche zur Verfügung. Im Pavillon befinden sich eine kleine Küche für die sogenannte Sommerkirche, Lagerflächen für Material der Pfadfinder, die hier im Sommer ein Zeltlager errichten und öffentliche barrierefreie Toiletten. In Anlehnung an die Kirche und die umgebende Bebauung erhält der einfach und zurückhaltend angelegte Baukörper des Pavillons ein Satteldach. Ein Ausschnitt im vorderen Bereich bildet einen überdachten gegengeschützten Platz aus, der mit Biertischen und -bänken möbliert und direkt aus der Küche bedient werden kann. Die Außenseite des Pavillons und das Dach erhalten eine einheitliche Bekleidung aus gespaltenen Lärchenholzschindeln. Im Bereich des Einschnitts besteht die Bekleidung aus Lärchenholz-Dreischichtplatten. Aus Hochwasserschutzgründen ist der Pavillon auf einer 26 cm dicken WU Bodenplatte gegründet. Die tragende Holzkonstruktion steht auf einer umlaufenden Sockelaufkantung von +40 cm über FFB ausgebildet. Die Außen- und Innenwände bestehen aus einer Holzrahmenbaukonstruktion und wurden in der Sockelaufkantung verankert. Die Wände im WC Bereich erhalten zusätzlich zur OSB Platte eine Fermacellplatte. Auf einen Estrich wird verzichtet. Der Lagerraum wird lediglich flügelgeglättet, alle weiteren Räume werden im Mittelbettverfahren gefliest. Wände und Decken sind gespachtelt und gestrichen mit Ausnahme des roh belassenen Lagerraums. Die Außenflächen sind einheitlich gepflastert. Fahrrad-Stellplätze befinden sich rechts und links neben der Kirche auf dem Grundstück der evangelischen Kirchengemeinde. Die zwei notwendigen PKW- Stellplätze sind entlang der Murgstraße untergebracht.