Stadtquartier Wilhelmshof

Kategorie: Wohnen
Bauweise: Massivbauweise
Jahr: 2019
Ort: Ettlingen
AG: Dr. Lickert Quartierüberbauung
Wilhelmstraße GmbH & Co.KG
Fotos: Stephan Baumann

Link: Wettbewerb 2015, 1. Preis
  • wlmshf_kfw_05.jpg
  • wlmshf_kfw_10.jpg
  • wlmshf_kfw_02.jpg
  • wlmshf_kfw_14.jpg
  • wlmshf_kfw_06.jpg
  • wlmshf_kfw_08.jpg
  • Lageplan
    Lageplan
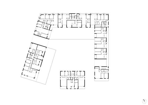
  • Grundriss Erdgeschoss
    Grundriss Erdgeschoss
  • Grundriss Obergeschoss
    Grundriss Obergeschoss


Erläuterungen:

Die Quartiersüberbauung Wilhelmstraße bildet das erste von fünf durchgrünten Quartieren. Das Quartier bietet Wohnungen, Büro-/Dienstleistungen sowie Handel und Gewerbe. Die Blockrandstruktur passt sich harmonisch in die bestehenden städtebaulichen Strukturen ein. Die U-förmige Bebauung bildet klare und abwechslungsreiche Kanten zur Bahnlinie und Wilhelmstraße. Gleichzeitig bildet die Struktur eine sinnvolle Abschirmung gegenüber den zahlreichen Lärmquellen, die auf das Grundstück einwirken.
Zur Planstraße im Südosten staffelt sich die Wohnbebauung in der Höhe ab und integriert eine Stadtvilla nahtlos. Baulücken werden zu Torsituationen umgewandelt, um die Quartiersecke und die Verbindung zum Stadtbahnhof zu betonen. Eine Baulücke wird aus technischen Gründen nach Süden verschoben, wodurch ein großzügiger privater Innenhof entsteht. Hier gibt es verschiedene Nutzungs- und Aufenthaltsqualitäten sowie erhaltenen Baumbestand im südlichen Teil des Grundstücks.
Die neue Bebauung umfasst auf bis zu 4 Geschossen insgesamt 52 Wohneinheiten, die über Laubengänge erschlossen sind. Die Laubengänge bieten eine vorgestellte Schallschutzebene, wodurch auf zusätzliche Schallschutzwände verzichtet werden kann. Alle Wohneinheiten verfügen über privat nutzbare Freiflächen in Form von Gartenanteilen, Terrassen, Loggien.
Auch in der Fassade wird mit schallabsorbierenden Materialien der Lärmbelastung auf dem Grundstück entgegengewirkt. Es wird eine Mischung aus vorgeblendeten Riemchen/Sichtmauerwerk-Fassadenflächen und dezent farbig strukturierten Putz-Fassadenflächen vorgeschlagen.