Einfamilienhaus in V

Kategorie: Wohnen
Bauweise: Massivbauweise mit Klinkerfassade
Jahr: 2015
Ort: Malsch
AG: Privat
Preise: BDA Auszeichnung 2017
Fotos: Stephan Baumann

  • vlkrsb_00237-bea.jpg
  • vlkrsb_00206.jpg
  • vlkrsb_01021.jpg
  • vlkrsb_00744.jpg
  • vlkrsb_01106.jpg
  • vlkrsb_00878.jpg
  • vlkrsb_00658.jpg
  • vlkrsb_01132.jpg
  • Lageplan
    Lageplan
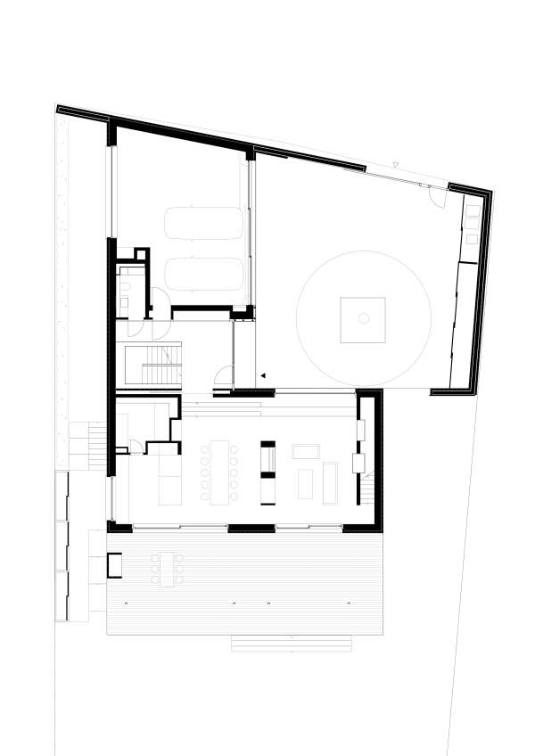
  • Grundriss Erdgeschoss
    Grundriss Erdgeschoss
  • Grundriss Obergeschoss
    Grundriss Obergeschoss
  • WMV-07-Schnitt 01-.JPG
  • WMV-09-Schnitt 03-.JPG
  • WMV-03-Ansicht 01-.JPG
  • WMV-AXO-20150306-1-3.jpg
  • DSCN8935-bea-weiss.jpg
  • DSCN8978-bea-weiss.jpg
  • DSCN8960-bea-weiss.jpg
  • DSCN6211-bearbeitet-weiss.jpg
  • 06-Modellbild3.jpg


Erläuterungen:

Der Neubau fügt sich auf ortstypische Weise in die bestehende Haus-Hof-Bebauung ein. Ein im Straßenraum präsenter giebelständiger Baukörper bildet gemeinsam mit einem rückwärtigen traufständig angeordneten Baukörper eine winkelförmige Anlage.
Zur Straße hin entsteht ein geschlossener, dem Hauseingang vorgelagerter Innenhof.
Auf der Gartenseite orientiert sich das leicht abfallende Grundstück nach Süden hin zur freien Landschaft.
In dem an der Straße angeordneten Volumen befinden sich im EG die Garage für drei PKW´s zuzüglich Gäste-WC und im Obergeschoss zwei Gästezimmer mit zugehörigem Bad.
In dem sich zur Tal- und  Gartenseite hin orientierenden Volumen sind im EG die Küche, der Ess- und und Wohnbereich angeordnet, im Obergeschoss das Schlafen, Badezimmer und Arbeiten. In der Fuge zwischen den beiden Hauptvolumen ist der überdachte Eingangsbereich mit einer markanten Haupterschließungstreppe aus Stahlblech untergebracht.
Zwischen dem Wohnbereich im EG und dem Arbeitszimmer im OG stellt eine weitere Treppe eine direkte Verbindung her. Die vorhandene, nach Süden hin leicht abfallende Topografie sorgt im Erdgeschoss für abgestufte Raumhöhen: Im Wohn-/Essbereich entsteht so eine besonders großzügige Raumhöhe. Dem Wohn-/Essbereich ist zur Gartenseite hin eine mit Holzdielen belegte Terrasse vorgelagert. In die zugeordnete Pergola aus Stahlprofilen ist ein ausfahrbarer textiler Sonnenschutz integriert. Im Obergeschoss zeichnet sich die Dachgeometrie entsprechend im Innenraum ab und sorgt für angenehm großzügige Raumhöhen. Eine aus der Gebäudekubatur ausgeschnittene Loggia ist dem Schlafzimmer als überdeckter Aufenthaltbereich im Freien vorgelagert. Die komplette Außenhülle des Wohnhauses besteht einschließlich der den Hof einfassenden Mauern und des Terrassen-Sockels aus einem grauen Ringofen-Ziegel. Die Tore zum Hof und zum Garten sind in Stahl konstruiert und mit grauer Eisenglimmerfarbe versehen. Die Haustür und alle Fenster bzw. Fenstertüren sind aus geöltem Eichenholz hergestellt. Der Sonnenschutz besteht aus grauen Senkrechtmarkisen. Auch im Innenraum bestimmt eine reduzierte Palette von Materialien die Atmosphäre: Decken und Wände sind weiß und glatt verputzt. Im Erdgeschoss sind alle Bodenbeläge aus Naturstein (geflammter elfenbeinfarbener Kalkstein) hergestellt. Die Einbaumöbel sind weiß lackiert. Die Corpi der Küchenzeile und des frei stehenden Blocks sind in der offen angelegten Küche aus sichtbar belassener Eiche gefertigt, die Arbeitsplatten sind aus Edelstahl gefertigt.
Im Obergeschoss sind die Fußböden aus Eichendielen gefertigt. Lediglich in den Bädern sind die Bodenbeläge aus dem o.g. Kalkstein ausgeführt. Einzelne Wandbereiche der Bäder sind mit einem Glasmosaik versehen. Die recht anspruchsvolle Haustechnik wurde einschließlich der künstlichen Beleuchtung weitgehend unsichtbar in die Architektur integriert.