Umbau Büro- und Gewerbegebäude in Wohnanlage Albaue

Kategorie: Wohnen, Umbau
Bauweise: Massivbauweise
Jahr: 2013
Ort: Karlsruhe-Rüppurr
AG: Bouwfonds Immobilienentwicklung GmbH
Veröffentlichungen: Karlsruhe neue Architektur (2018)
Fotos: Stephan Baumann

  • albaue_06.jpg
  • Bestandsbild
    Bestandsbild
  • albaue_01.jpg
  • albaue_12.jpg
  • albaue_14.jpg
  • albaue_13.jpg
  • Titelseite Architekturfuehrer 2019 sw.jpg
  • Lageplan
    Lageplan
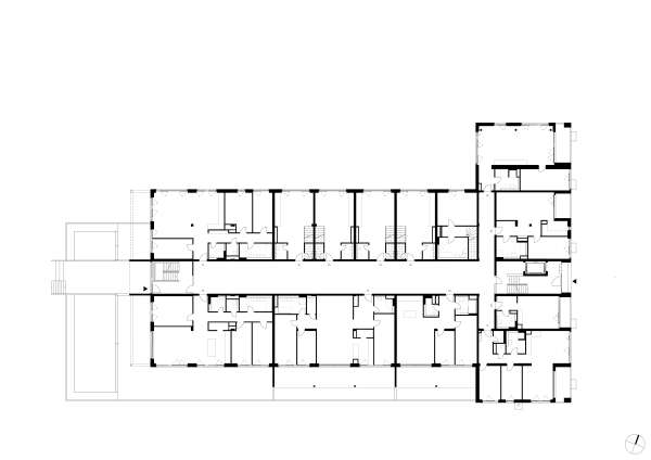
  • Grundriss Erdgeschoss
    Grundriss Erdgeschoss
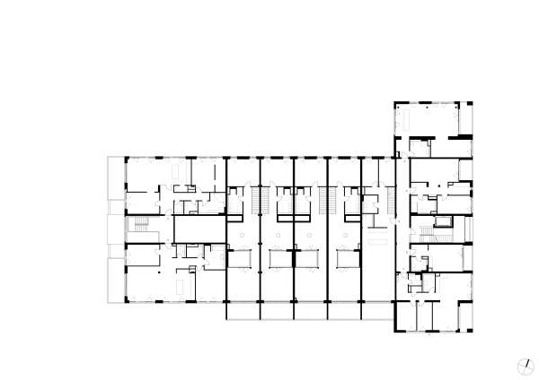
  • Grundriss Obergeschoss
    Grundriss Obergeschoss
  • Schnitt
    Schnitt
  • WHK-DOKU-Explosionszeichnung-grüne_Version-150dpi-2013-10-24.jpg


Erläuterungen:

Ein ehemals gewerblich als Verwaltungsgebäude mit Lagerhaltung genutztes Gebäude aus den 1960er Jahren wurde zu einem Wohngebäude mit 23 Eigentumswohnungen umgebaut und nachhaltig revitalisiert.
Die Gebäudestruktur wurde bis auf das Rohbauskelett zurückgebaut. Teile des Bestands wurden zur Reduzierung der Baumasse und zur Erzeugung von erhabenen Terrassen ersatzlos bis auf Oberkante UG (Sockelhöhe) abgebrochen. Das Untergeschoss wurde in eine Tiefgarage umgewandelt.
Zur inneren Erschließung dient insbesondere eine im EG angelegte "Rue Interieure", die über mehrere bis zum Dach durchbindende Oberlicht-Röhren mit natürlichem Licht versorgt wird. Bei dem straßenbegleitenden Riegel wechselt die Erschließung im Dachgeschoss (aus Lärmschutzgründen und zur besseren Orientierung zu den Dachgärten hin) von der Westseite auf die Ostseite. Die großzügig angelegten Wohnungsgrundrisse sind vorwiegend nach Süden und nach Westen hin orientiert. Klare Linien, Offenheit und Lichtdurchlässigkeit prägen sämtliche Wohneinheiten. Einerseits, um der besonderen Tiefe der bestehenden Baulichkeiten zu entsprechen und andererseits mit der Maßgabe, keine Wohnung ausschließlich nach Norden hin zu orientieren, wurden besondere Wohnungstypen als schmale und sehr tiefe Maisonetten entwickelt, die mit eigens zugeordneten Innenhöfen ausgestattet sind.
Die Außenanlagen wurden als eine zusammenhängende parkartige Grünanlage entwickelt.