Neubau Kreuzschule

Kategorie: Bildung, Sport, Kita, Wohnen
Bauweise: Massivbauweise
Jahr: 2016
Ort: Regensburg
Ausloben/in: Stadt Regensburg

  • Lageplan
    Lageplan
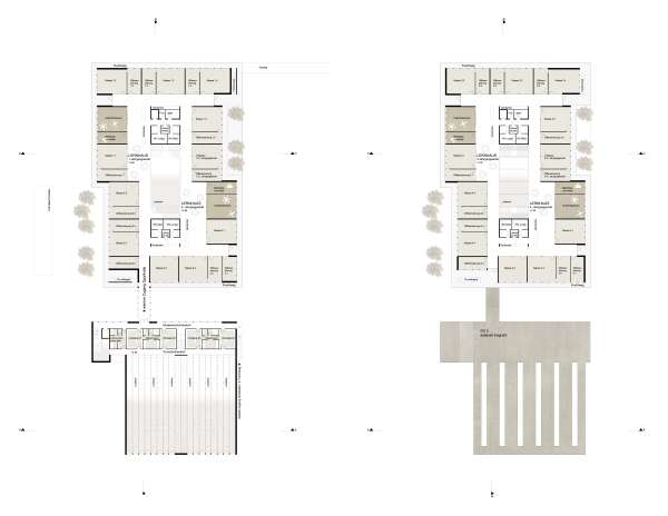
  • Grundriss EG
    Grundriss EG
  • Grundriss OG1, OG2
    Grundriss OG1, OG2
  • Detailschnitt, Teilansicht
    Detailschnitt, Teilansicht
  • Materialität
    Materialität


Erläuterungen:

Das zur Verfügung stehende Wettbewerbsgelände gliedert sich in optimal aufgeteilte Grundstücksflächen für Schule, Hort und Sporthalle und weitere, angemessen zugeschnittene Grundstücksflächen für den ergänzenden Wohnungsbau.
Die 3-4 geschossige Wohnbebauung im Norden und Osten arrondiert die Rückseiten der Bebauung an der Prüfeningerstraße und zum Hochhaus hin. Zum Schulgelände entsteht in Verbindung mit dem neuen baumbestandenen Straßenraum ein harmonischer Übergang. Die ergänzende Wohnbebauung wird als aufgelockerte Straßenrandbebauung mit bewährten Spännertypen und Tiefgarage interpretiert. Über die neu geschaffene, verkehrsberuhigte Planstraße A im Norden wird der Hort erschlossen und ist so aus allen Richtungen gut erreichbar.
Architektonische und landschaftsplanerische Konzeption
Die klare Setzung und Gestaltung der Baukörper von Schule und Hort sorgen für eine gelungene Adressbildung und eine entsprechende Identifikationsmöglichkeit. Die differenzierten und gleichzeitig übersichtlichen Freiräume tragen zu einer guten Orientierung bei. Gleich nach dem Betreten der Schule gelangt man in die großzügig angelegte Halle mit Tageslicht von oben und blickt durch die Glaswände des Speiseraums in den begrünten
Schulhof. 
Um das gewünschte Ensemble von Schule, Sporthalle und Hort entsprechend klar herausarbeiten zu können, sollte das Erscheinungsbild der drei Baukörper wiederkehrende
Merkmale und gleiche Materialien aufweisen. Es finden nach ökologischen Gesichtspunkten ausgewählte natürliche und spürbar handwerklich verarbeitete Materialien Verwendung: Neben Holz für die Fußböden, Fensterrahmen, Wand- und Fassadenpaneele kommen Glas und durchgefärbte, beigefarbene, Betonfertigteile mit leicht rauer Oberfläche zur Anwendung.
Als Absturzsicherung dienen besonders transparente Stahlgeflechte.