Revitalisierung Wohn- und Geschäftshaus

Kategorie: Wohnen, Arbeiten, Umbau
Bauweise: Massivbauweise (Anbau) Holzrahmenbauweise (DG)
Jahr: 2023
Ort: Karlsruhe-Südstadt
AG: GG Kränze Fischer-Wasels
Preise: Auszeichnung Beispielhaftes Bauen Stadt Karlsruhe 2018-2024 
Fotos: Stephan Baumann, KFWM Architekten BDA

  • wdp37_02.jpg
  • wdp37_05.jpg
  • AWK_Innenraum Büro (1).jpg
  • Wohn-und Geschaeftshaus Werderplatz-Bild 5.jpeg
  • 11_wdpdg_0148.jpeg
  • 04_wdpdg_0021.jpg
  • 13_wdpdg_0275.jpg
  • 17_wdpdg_0263.jpg
  • 19_wdpdg_0196.jpg
  • 20_wdpdg_0224.jpg
  • Lageplan
    Lageplan
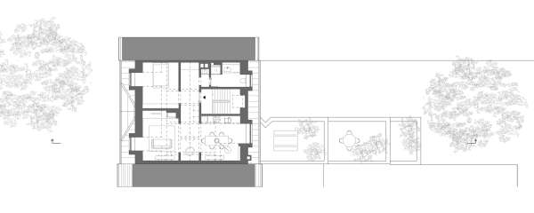
  • Grundriss Dachgeschoss
    Grundriss Dachgeschoss
  • Schnitt
    Schnitt
  • 4-Querschnitt-WoZi.jpg
  • 5-Querschnitt-Küche.jpg
  • 6-Querschnitt-Bad.jpg
  • 7-Längsschnitt.jpg
  • Strassenfassade vorher sw.png
  • hoffassade nachher sw 2-klein.jpeg
  • Dachboden vorher_sw.jpeg


Erläuterungen:

Das 1889 von den renommierten Karlsruher Architekten Kempermann & Slevogt geplante viergeschossige Wohn- und Geschäftshaus am Werderplatz 37 trägt zum wertvollen Erscheinungsbild der Gründerzeithäuser am Werderplatz bei. Im 2. Weltkrieg wurden der Seitenflügel im Hof und das Dach des Gebäudes leider zerstört. Das Dach wurde nach dem Krieg lediglich als Notdach neu erstellt. In den 1970er Jahren wurde auf der Grundfläche des zerstörten Seitenflügels ein eingeschossiges Lager in Einfachst-Bauweise für das im Erdgeschoß befindliche Geschäft errichtet. Das Haus wurde im Jahr 2000 von der GG Kränzle+Fischer-Wasels zur Eigennutzung und zur Vermietung erworben. Die vier Nutzungseinheiten wurden behutsam renoviert (Erneuerung der Bäder, Heizung und Elektroinstallationen). Das Erdgeschoß wurde für eine Nutzung als Tagescafé mit Nebenräumen und Küche umgebaut. In diesem Zusammenhang konnte die in den 70er Jahren zugebaute Platzfassade im Erdgeschoß wieder freigelegt werden. Die in den 70er Jahren leider entstandenen Beschädigungen und Zerstörungen der Naturstein-Elemente wurden, wo konstruktiv notwendig, behutsam ergänzt, oder, als Zeitzeugen, so belassen. Der hofseitige Anbau: 2018- 2019 wurde nach Abbruch des baufälligen Lagers ein dreigeschossiger Anbau realisiert. Er staffelt sich in der Höhe geschossweise nach Norden hin ab. Der Neubau stellt zusätzliche Räumlichkeiten zu Verfügung. Ab dem 1. OG erhält jede Nutzungseinheit jeweils einen eigenen Dachgarten.
Der neue Dachstuhl: 2022 wurde das baufällige Dach abgebrochen und mit Dachgauben und erhöhtem First in Holzkonstruktion neu aufgerichtet. Der entstandene Dachraum wurde zu einer Wohneinheit umgenutzt.
Der markante Innenraum wird durch die großzügige Offenheit und die geordnete Plastizität der sichtbar belassenen Dach- schrägen, Gauben, Pfetten und Luftbalken geprägt.
Die Konzeption beschränkt sich auf wenige Materialien und Farben: Wände und Decken sind ganz in weiß gehalten. Als Fußboden dient ein Massivholzparkett aus Eiche. Die Möblierung besteht vorwiegend aus Einbaumöbeln. Dachdeckung, Dachrinnen und Fallrohre sind einheitlich aus vorbewittertem Titanzinkblech gefertigt.
Ausführung: Die im Rahmen der Baumaßnahmen realisierten energetischen Maßnahmen erfüllen die EnEV und darüber hinaus die Anforderung der KfW. Die im Altbau zuletzt in den 60er Jahren erneuerten Fenster wurden durch energetisch angepasste Holzfenster mit Wärmeschutzverglasung und neuer Teilung ersetzt. Alle vorgenommenen Baumaßnahmen geschahen unter der Maßgabe, die historische Substanz möglichst zu erhalten bzw. wiederherzustellen und den Bestand wirtschaftlich, nachhaltig und energetisch zukunftsfähig zu erneuern.