Einfamilienhaus F

Kategorie: Wohnen
Bauweise: Massivbauweise 
Jahr: 2016
Ort: Karlsruhe
AG: Privat
Fotos: Stephan Baumann

  • 01.jpg
  • frbnd_03.jpg
  • frbnd_05.jpg
  • frbnd_07.jpg
  • frbnd_08.jpg
  • frbnd_06.jpg
  • frbnd_12.jpg
  • frbnd_15.jpg
  • Lageplan
    Lageplan
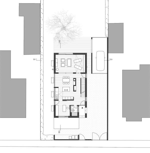
  • Grundriss EG
    Grundriss EG
  • Grundriss OG
    Grundriss OG